BEAURAINVILLE
Local à louer sur BEAURAINVILLE - Route Nationale 39
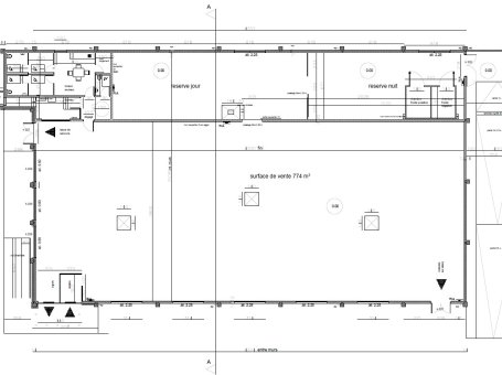
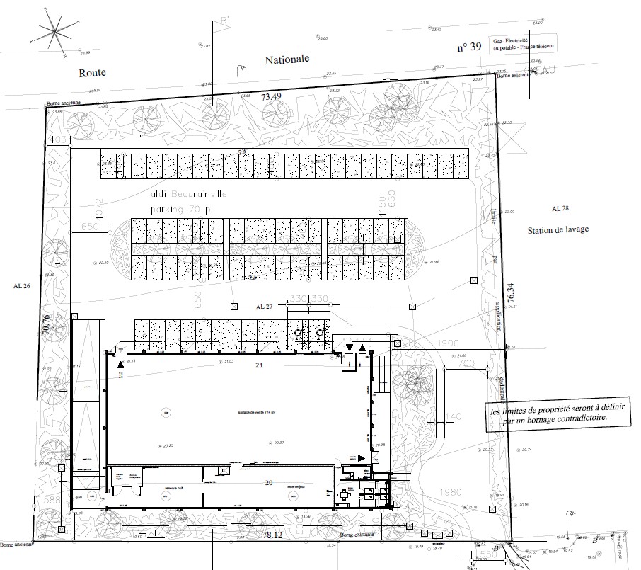
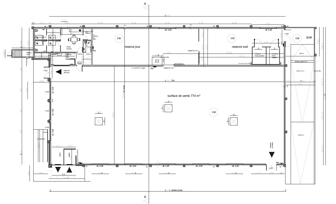
Bâtiment en béton de 1105m² brut soit 1082m² net
comprenant surface de vente de 774,00 m²
Parking de 70 places
Aménagement intérieur :
- carrelage 20/20
- mélaminé + isolant sur les murs
- Faux plafond à une hauteur de 3.00m.
- SAS d'entrée/sortie avec Portes automatiques + volet métallique
- Chauffage gaz (aérotherme)
- réserve avec faux plafond à 3.00m de haut
- Quai de livraison pour Semi remorque
- locaux sociaux avec local cuisine, 2 vestiaires, 2 wc's, local rangement, 1 wc pmr et un bureau avec accès trappon
Loyer 60€ht/m²
Ville : BEAURAINVILLE
Formulaire de contact
Besoin d'une information ? L'équipe SARO CONSTRUCTION est à votre disposition pour tout renseignement.
